The Kalahari - Move In Ready
Overview
Features
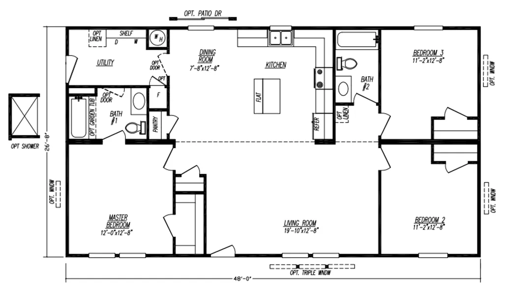
Floor Plan
- IN STOCK
- MOVE-IN READY
The Kalahari - Move IN Ready
3 beds
2 baths
2,492 sq. ft.
0.01 acres
† Images may show options not included in base price
Overview
Move-in-Ready Home on Lot in Pataskala MHC - Call 740-828-2104 #ClaytonHomesFrazeysburg
Location
210 Cedar Street Lot 10, Pataskala, OH 43062
Features
Move-In Ready
Gas Furnace
Gas Range
2x6 Exterior Walls
Upgrade Insulation
Side Entry Utility Rm
Nice Deck
Semi Private Lot
Island Kitchen
Kitchen Pantry
3 BR 2 Bath
Floor Plan

Homes built with you in mind
We accept trades!
Find a new home you love? Contact us for more information about our trade-in requirements and to schedule your free trade evaluation.
Learn MoreLearn More About this Property
See Clayton Homes Frazeysburg
- Brokerage Phone: (740) 828-2104
- Listing Agent Email: hc1058@claytonhomes.com
Copyright © 2025 Knoxville Area Association of Realtors ®. All rights reserved. All information provided by the listing agent/broker is deemed reliable but is not guaranteed and should be independently verified.
Take the next step
† Sales price does not include other costs such as taxes, title fees, insurance premiums, filing or recording fees, improvements to the land or home, community or homeowner association fees, or any other items not shown on your Sales Agreement, Retailer Closing Agreement and related documents (your SA/RCA). If you purchase a home, your SA/RCA will show the details of your purchase. Artists’ renderings of homes are only representations and actual home may vary. Floor plan dimensions are approximate and based on length and width measurements from exterior wall to exterior wall. We invest in continuous product and process improvement. All home series, floor plans, specifications, dimensions, features, materials, and availability shown on this website are subject to change.





